Skip to content
FR

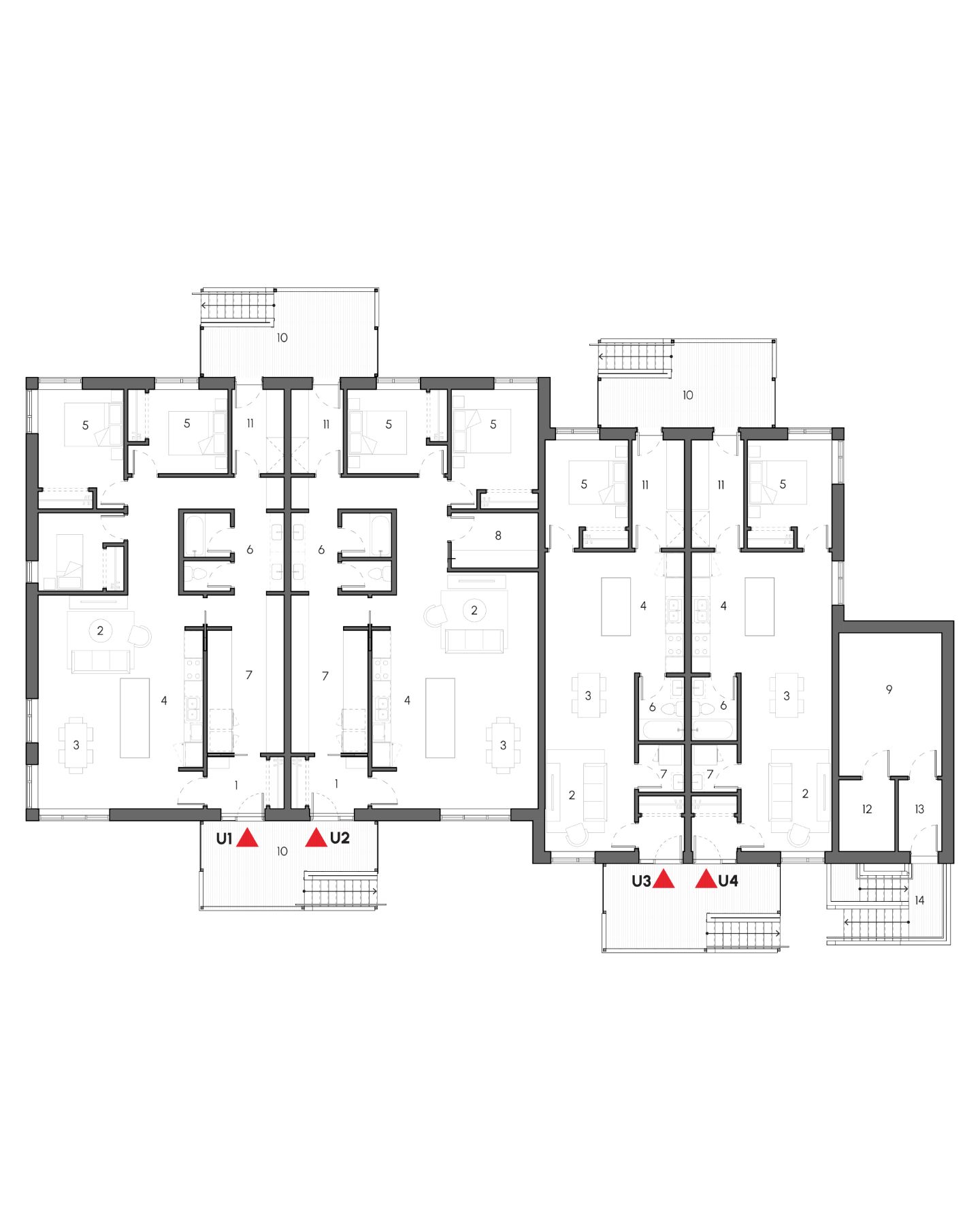
Fourplex - Tanked

YT, NWT, NU

Gross Building Area: 461 sq. m. (4957 sq. ft)

1–3 1 Per unit

4-unit home designed for tanked services. Includes accessible-ready units.

Let us keep you up to date

Floor Plans

Legend:

  • 1. Entry
  • 2. Living
  • 3. Dining
  • 4. Kitchen
  • 5. Bedroom
  • 6. Washroom
  • 7. Laundry
  • 8. Storage
  • 9. Mechanical
  • 10. Terrace/Patio
  • 11. Alt entry/exit
  • 12. Water tank
  • 13. Electrical
  • 14. Water fill

An asterisk (*) indicates a required field.

Let us keep you up to date

Sign up for notifications about the Housing Design Catalogue.